Mieszkanie na sprzedaż Katowice, Dąb

3 pokoje
47.30 m²
6 955,60 zł/m2
4 piętro
HMV-MS-87
Oblicz ratę kredytu

329 000 zł

Mieszkanie na sprzedaż
Oferta na wyłączność

Szczegóły oferty

Symbol oferty HMV-MS-87
Powierzchnia 47,30 m²
Powierzchnia użytkowa [m2] 47,30 m²
Liczba pokoi 3
Liczba sypialni 1
Rodzaj budynku blok
Technologia budowlana cegła
Standard
Opłaty w czynszu CO, fundusz remontowy, sprzątanie, administracja
Opłaty wg liczników gaz, prąd
Piętro 4
Liczba pięter w budynku 4
Stan lokalu Do remontu
Mies. czynsz admin. 710 PLN
Czynsz zimowy 710 PLN
Okna PCV
Instalacje niewymienione
Balkon brak
Rok budowy 1960
Widok na osiedle
Gaz jest
Woda tak - ciepła piecyk gazowy
Dojazd asfalt
Otoczenie zabudowa wielorodzinna
Ogrzewanie miejskie
Usytuowanie dwustronne
piwnica tak, 4,00 m²
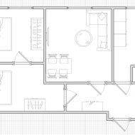
Pomieszczenia
Podłogi pokoi wykładzina
Typ kuchni bez zabudowy
Rodzaj kuchni oddzielna
Podłoga kuchni wykładzina
Typ łazienki razem z wc
Liczba łazienek 1
Glazura łazienki bez glazury
Wyposażenie łazienki lustro, umywalka, wanna, WC
Liczba przedpokoi 1
Podłoga przedpokoi wykładzina

Opis nieruchomości

3 pokojowe mieszkanie z osobną kuchnią
do własnej aranżacji!


Zapraszam do zapoznania się z ofertą 3 pokojowego mieszkania z osobną kuchnią o powierzchni użytkowej 47,30m2 znajdującej się na 4 piętrze w 4 piętrowym bloku po termomodernizacji przy ul. Błękitnej w Katowicach.

Mieszkanie do własnej aranżacji, świetna baza do stworzenia wymarzonego wnętrza! Istnieje również możliwość  zaprojektowania przestronnego salonu z aneksem kuchennym, biurem oraz niezależną sypialnią.
Dobrze doświetlona nieruchomość z widokiem na osiedlową zieleń i panoramę miasta. Do mieszkania  jest przypisana piwnica około 4m2
 
Dlaczego warto?
-przypisana piwnica

-centralne ogrzewanie miejskie z podzielnikami
-ciepła woda z piecyka gazowego

-ogólnodostępne miejsca parkingowe pod budynkiem
-wyremontowana klatka schodowa 
-czynsz 710zł
(wliczona zaliczka na CO, fundusz remontowy, eksploatacja)
-spokojna okolica
-dużo terenów zielonych
-okna skierowane są na wschodnią i południową strony świata

W metraż nieruchomości wliczone są:

-KUCHNIA

-SALON 
-SYPIALNIA
-POKÓJ 
-ŁAZIENKA z piecykiem gazowym 
-PRZEDPOKÓJ z miejscem na szafę 

Lokalizacja, osiedle Dąb, ciche, dobrze skomunikowana dzielnica z pełną infrastrukturą w okolicy. Niedaleko mieszkania znajdują się parki, przystanki komunikacji miejskiej, szkoły, przedszkola i żłobki, a wokół dużo osiedlowej zieleni.

-sklepy (Kaufland, Żabka, Groszek) 
-Stacja benzynowa 
-Galeria handlowa Silesia City Center
-przystanki autobusowe
-szkoły 
-przedszkola 
-park
-plac zabaw 

Jeśli jesteś zainteresowany nieruchomością, masz jakieś pytania lub chcesz umówić się na prezentację to zapraszam do kontaktu telefonicznego.

WYŁĄCZNIE U NAS!
Homevia nieruchomości oddział Katowice
Opiekun Oferty- MAJA RUSIN
tel: 790-848-185
ul. Żelazna 15B


DZIĘKI NAM KUPUJESZ TANIO, SZYBKO I BEZPIECZNIE!!!
 

Gwarantujemy bezpieczeństwo transakcji.


 

Oferty zamieszczone na stronie internetowej przygotowywane są na postawie oględzin nieruchomości oraz informacji uzyskanych od właściciela. Weryfikujemy je i sprawdzamy, jednak wszelkie informacje w nich zawarte mogą ulegać aktualizacji, w związku z czym nie stanowią oferty w rozumieniu Kodeksu Cywilnego, a dane w nich zawarte mają jedynie charakter informacyjny.
 

Lokalizacja nieruchomości

Kalkulatory

Kalkulator kredytowy

Wysokość raty

PLN
%

Kalkulator kosztów

Podatek od czynności cywilno-prawnych

Taksa notarialna
(opłata notarialna)

Wniosek o wpis do KW

VAT od prowizji
agencji nieruchomości

VAT od taksy notarialnej
(opłaty notarialnej)

Prowizja agencji nieruchomości

Wypisy aktu notarialnego

Razem

Uwaga: mogą wystąpić dodatkowe opłaty za założenie księgi wieczystej oraz ustanowienie hipoteki.

PLN
PLN
PLN
PLN
PLN
PLN
%
PLN

Doradca ds. nieruchomości

Proszę wprowadzić poprawne imię i nazwisko
Proszę wprowadzić poprawny numer telefonu
Proszę wprowadzić poprawny adres e-mail
Proszę zaznaczyć wymagane zgody
Rozwiąż równanie:
16 7
Niepoprawny wynik